Hyväkuntoinen vapaa-ajan kiinteistö Karttulassa, Hirvijärven rannalla, joka soveltuu ympärivuotiseen käyttöön. Kaava RA/2.
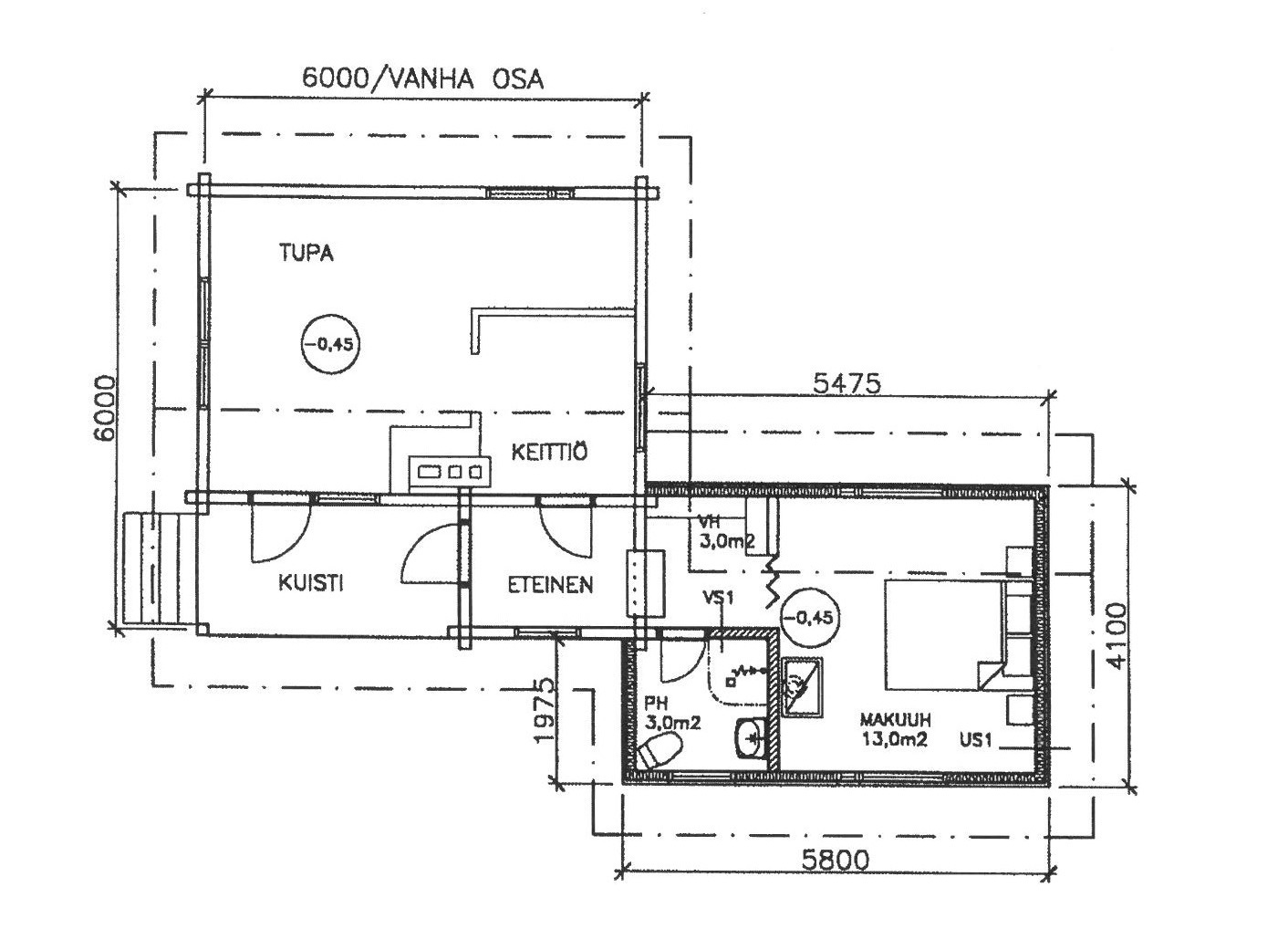
Päärakennuksessa on tupakeittiö, jossa on uusittu keittiö koneineen (myös astianpesukone), tuvassa uusittu vuolukivinen takka. Ikkunat ja ulko-ovet uusittu.
Niemipaikka Hirvijärven rannalla. Tie perille, sähköt, vesiosuuskunnan vesi, vesi-wc.
Tilat: kuisti, olohuone, keittiö, makuuhuone, kph/wc.
Lisäksi pihapiirissä on rantasauna, aitta ja varastotiloja.
Esittelemme kohdetta yksityisnäytöin, joten soitathan meille tai laitat sähköpostia, niin sovitaan katsomisesta;
Katja Määttälä, 040 5411 452
katja.maattala@lkvkiinteistoinssi.fi
Asunnon perustiedot
Kohdenumero | 21662484 |
---|---|
Sijainti |
|
Tyyppi | Mökki tai huvila |
Omistusmuoto | Oma |
Huoneistoselitelmä | Tupa, keittiö, kph/wc, mh. |
Asuinpinta-ala m² | 50 m² |
Yhteensä m² | 50 m² |
Lisätietoja pinta-alasta | 1979 päivätyn rakennuslupapiirustuksen mukaan mökin kerrosala on 27,8 k-m². Ja laajennusosan 22 k-m². |
Kerros | 1 |
Kerroksia | 1 |
Vapautuminen | Sopimuksen mukaan |
Yhteystiedot ja esittelyt
Yhteystiedot |
|
---|---|
![]() |
|
|
Hinta ja kustannukset
Velaton hinta | 92 000 € |
---|---|
Myyntihinta | 92 000 € |
Kiinteistövero | 250,00 € |
Lisätietoja maksuista | Tiemaksua on mennyt noin 50 e/v sisältäen kimpparoskiksen. Sähköä on mennyt vähän, koska on aurinkopaneelit. Siirtomaksu. |
Asunnon lisätiedot
Sauna |
|
---|---|
Tulisija |
|
Yleiskunto | Hyvä |
Lisätietoa kunnosta | Ikkunat on uusittu 2021. Varaava takka ja leivinuuni on asennettu 2021. Keittiö on uusittu 2021. |
Tehdyt korjaukset | Tuvan lattia on uusittu. Lautalattia on alla. Keittiö on remontoitu 2021. Aurinkopaneelit. Aitta. Ikkunat. |
Lämmitysjärjestelmä ja sen kunto | Tuvassa on vuolukivinen takka ja leivinuuni. Kamarissa on kevyttakka. |
Lämmitysjärjestelmän kuvaus | Aurinkolämpö, puu, sähkö, muu |
Muut kaupan kannalta merkittävät tiedot | Omistajan vaihdoksen yhteydessä tulee tarkastaa tuleeko kiinteistön liittyä viemäriverkostoon. Nyt on ollut riittävä, umpisäiliö ja imeytys. |
Asunnon tilat ja materiaalit
Asunnon tilat ja materiaalit |
|
---|---|
Katto |
|
Keittiön kuvaus |
|
Kylpyhuoneen kuvaus |
|
Saunan kuvaus |
|
Olohuoneen kuvaus |
|
Makuuhuoneiden kuvaus |
|
Tontti
Kiinteistötunnus/laitostunnus | 297-474-13-5 |
---|---|
Kortteli/kiinteistön nimi | Kiviranta |
Tontin pinta-ala | 1,5031 ha |
Tontin omistus | Oma |
Lisätietoja rakennusoikeudesta | Kuopion kaupungilta 017 182 111. Rakennuspaikalle saa rakentaa loma-asunno, saunan ja talousrakennuksia. Rakennusten yhteenlaskettu kerrosala saa olla enintään 160 k-m². |
Lisätietoa kaavoituksesta | Kuopion kaupungilta 017 182 111. RA/2. Loma-asuntoalue. Alue on tarkoitettu omarantaisten loma-asuntojen rakentamiseen. |
Palvelut ja liikenneyhteydet
Palvelut | Karttulan palvelut noin 10 k.m |
---|


















