Monien mahdollisuuksien rantapaikka hyvien kulkuyhteyksien äärellä Jännevirralla.
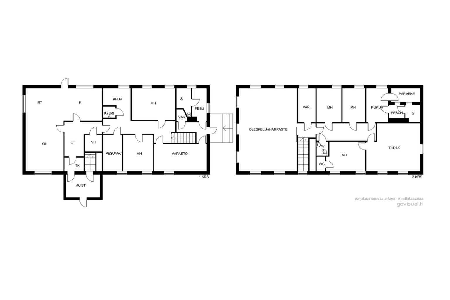
Kokonaisalaltaan 545 neliöisestä talosta on moneen eri käyttötarkoitukseen. Se sopii hyvin kahden perheen kodiksi, yhdistetyksi kodiksi ja työtiloiksi jne.
Tätä kohdetta on vaikea pukea sanoiksi ja sen vuoksi se on viisainta nähdä paikanpäällä.
Vapautuu sopimuksen mukaan.
Lisätiedot ja esittelyt:
Lassipekka Parviainen 044 700 8775
lassipekka.parviainen@lkvkiinteistoinssi.fi
Asunnon perustiedot
| Kohdenumero | 21346688 |
|---|---|
| Sijainti |
|
| Tyyppi | Omakotitalo |
| Huoneistoselitelmä | 8h+2*k+2*s+3*kph+varasto-/työtiloja |
| Asuinpinta-ala m² | 230 m² |
| Yhteensä m² | 545 m² |
| Lisätietoja pinta-alasta | Kuopion kaupungin rakennusvalvonnan mukaan kerrosala on 365 m² ja kokonaisala 545 m². Asuintilojen pinta-ala on arvio, ei tarkistusmitattu. |
| Kerros | 1 |
| Kerroksia | 3 |
| Rakennusvuosi (päättynyt) | 1950 |
| Käyttöönottovuosi | 1950 |
| Vapautuminen | Sopimuksen mukaan |
Yhteystiedot ja esittelyt
| Yhteystiedot |
|
|---|---|
|
|
|
|
Hinta ja kustannukset
| Velaton hinta | 268 000 € |
|---|---|
| Myyntihinta | 268 000 € |
| Lisätietoja maksuista | Puukattila lämmitys, poltetun puun määrä ei ole tiedossa. Kiinteistövero vuonna 2025 380 euroa. Tiemaksu vaihtelee vuosittain. Tällä hetkellä tiemaksu on pieni johtuen varalaskeutumispaikan rakentamisen tuomista korvauksista, tiemaksu 2025 64,20 euroa. Sähköä on kulunut 5 000 - 20 000 kWh/vuosi riippuen kellarikerroksen työtilojen käyttömäärist. |
Asunnon lisätiedot
| Sauna |
|
|---|---|
| Tilojen kuvaus | Asuinkerroksissa reilusti säilytystiloja. Kellarikerroksessa on työtiloja ja varastoja. |
| Yleiskunto | Tyydyttävä |
| Tehdyt korjaukset | - 2020-luvulla peltikatto maalattu - 2000-luku Salaoja- ja sadevesijärjestelmä asennettu - 2017-2018 Keittiöremontti - 1981- 2000-luku Lämmitysjärjestelmiä uusittu - 1981- 2000-luku Käyttövesiputket uusittu - 2000- luku Viemärit uusittu - 1980- 2000-luku Sähköistyksiä uusittu - 2000- luku Ikkunat ja ulko-ovet uusittu |
| Energialuokka | D2018 |
| Lämmitysjärjestelmän kuvaus | Puu |
Asunnon tilat ja materiaalit
| Asunnon tilat ja materiaalit |
|
|---|---|
| Katto |
|
| Keittiön kuvaus |
|
| Kylpyhuoneen kuvaus |
|
| WC-tilojen kuvaus |
|
| Saunan kuvaus |
|
| Olohuoneen kuvaus |
|
| Makuuhuoneiden kuvaus |
|
Tontti
| Kiinteistötunnus/laitostunnus | 297-416-3-86 |
|---|---|
| Energialuokka | D2018 |
| Tontin pinta-ala | 5040 m² |
| Tontin omistus | Oma |
| Lisätietoa kaavoituksesta | Ra 1 |
