Tyylikäs ja laajasti remontoitu omakotitalo arvostetulla Linnanpellon puutaloalueella.
Tervetuloa tutustumaan tähän hurmaavaan ja mittavasti uudistettuun omakotitaloon, joka sijaitsee suojaisalla paikalla päättyvän kadun viimeisenä talona aivan puistoalueen kupeessa. Tämä koti tarjoaa tilaa, toimivuutta ja tunnelmaa isommankin perheen tarpeisiin, vain lyhyen matkan päässä Kuopion keskustasta.
Kodissa yhdistyvät kauniisti moderni asumismukavuus ja lämminhenkinen tunnelma.
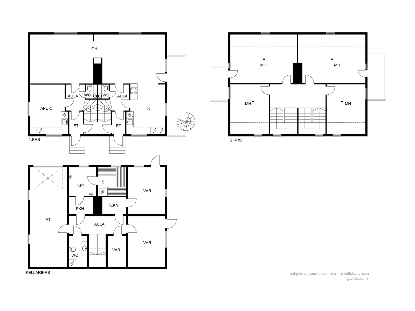
Sisääntulokerroksessa sijaitsee vuonna 2020 uusittu, tyylikäs keittiö, joka jatkuu luontevasti ruokailutilana. Täältä on käynti viihtyisälle lasitetulle kuistille sekä avokuistille täydellinen paikka nauttia vuodenajoista. Tilava olohuone kutsuu viihtymään takkatulen äärelle, ja suuret uusitut ikkunat tuovat runsaasti luonnonvaloa avariin tiloihin.
Keskikerros on suunniteltu arjen sujuvuutta ajatellen: käytössäsi on erinomainen apukeittiö, jossa pyykkihuolto hoituu vaivattomasti. Lisäksi kerroksessa on kaksi remontoitua wc-tilaa.
Yläkerta on kokonaisuudessaan uudistettu kattoa myöten ja tarjoaa neljä reilunkokoista makuuhuonetta sekä parvekkeen. Tilat ovat valoisat, toimivat ja helposti muunneltavissa perheen tarpeisiin.
Kellarikerroksessa sijaitsevat tunnelmalliset sauna- ja pesutilat, joissa puukiuas tuo pehmeät löylyt. Lisäksi kerroksessa on wc pesukoneliitännällä, runsaasti varasto- ja harrastetilaa sekä erillinen huone, josta on käynti alakerran terassille.
Pihapiiri on vehreä ja suojaisa. Kaupungin vuokratontin sopimus on uusittu, mikä tuo asumiseen huolettomuutta pitkäksi aikaa.
Lämmityksestä vastaa energiatehokas vesi-ilmalämpöpumppu, lattialämmitys ja patterit.
Tämä koti tarjoaa:
– Laajasti remontoidut ja valoisat tilat
– Neljä makuuhuonetta + runsaasti lisätilaa
– Olohuoneessa on tunnelmallinen takka ja saunassa puukiuas
– Autotalli sekä harraste- ja varastotiloja
– Rauhallinen sijainti puiston vieressä
– Erinomainen sijainti lähellä keskustaa.
Tässä kodissa yhdistyvät sijainti, tila ja tunnelma ainutlaatuisella tavalla tervetuloa ihastumaan!
Katja Määttälä, 040 5411452
katja.maattala@lkvkiinteistoinssi.fi
Lassipekka Parviainen, 044 700 8775
lassipekka.parviainen@lkvkiinteistoinssi.fi
Asunnon perustiedot
| Kohdenumero | 21726362 |
|---|---|
| Sijainti |
|
| Tyyppi | Omakotitalo |
| Omistusmuoto | Oma |
| Huoneistoselitelmä | 6h+k+s+kph+s+3 wc, alakerran tilat. |
| Asuinpinta-ala m² | 185 m² |
| Yhteensä m² | 291 m² |
| Lisätietoja pinta-alasta | Pinta-aloja ei ole tarkistusmitattu. Kellarikerros 106 m². Keskikerros ja yläkerta 185 m². |
| Kerros | 3 |
| Kerroksia | 3 |
| Rakennusvuosi (päättynyt) | 1954 |
| Käyttöönottovuosi | 1954 |
| Vapautuminen | Sopimuksen mukaan |
Yhteystiedot ja esittelyt
| Yhteystiedot |
|
|---|---|
|
|
|
|
Hinta ja kustannukset
| Velaton hinta | 365 000 € |
|---|---|
| Myyntihinta | 365 000 € |
| Lisätietoja maksuista | Sähköä on mennyt noin 22-27 000 kWh/v. Sisältäen täyssähköauton latauksen. Puuta ei ole käytetty juurikaan lämmitykseen. Ilmalämpöpumppuja on kaksi. Vesi-ja jätevesi käytön mukaan. Hulevesimaksu 40 e/v. Talvikunnossapito 29,34 e/v. Kiinteistövero 263,64 e/v. Tontin vuokra 1595 e/v. Jätehuolto 150 e/v, biokimppa. |
Asunnon lisätiedot
| Sauna |
|
|---|---|
| Tulisija |
|
| Tilojen kuvaus | Lasitettu terassi ja avoterassi, josta on portaat pihalle. Yläkerran parvekkeella on markiisi. Apukeittiö, jossa on pesukoneliitäntä ja tilavaraus kuivausrummulle. Vesipiste. Kaapistot. Kuivauskaappi. |
| Yleiskunto | Hyvä |
| Lisätietoa kunnosta | Tehty mittavat remontit. |
| Tehdyt korjaukset | Katto 2011. Etuseinän korjaus 2011. Sisätilat: KHH/apukeittiö 2010. Vesi-ilmalämpöpumppu uusittu 2017. Alakerran ilmalämpöpumppu noin 2017. Sauna 2018. Keittiö ja koneet 2020. WC:t keskikerros 2020. Talo on maalattu ja vesirännit uusittu 2021. Lisälämmöneristys yläpohjaan 2022. Yläkerran remontti 2025, ikkunat uusittu ja koko yläkerta tehty uusiksi. Lopputarkastus 2025. Keskikerroksen valurautaviemärit on sukitettu. Käyttövesiputket on uusittu. ks. listaus |
| Lämmitysjärjestelmä ja sen kunto | Vesi-ilmalämpöpumppu, lattialämmitykset, osin myös sähkö. Lisäksi vesikiertopatterit. Takka. |
| Lämmitysjärjestelmän kuvaus | Ilmavesilämpöpumppu, ilmalämpöpumppu, muu |
| Muut kaupan kannalta merkittävät tiedot | Leikkimökki sisältyy hintaan. |
Asunnon tilat ja materiaalit
| Asunnon tilat ja materiaalit |
|
|---|---|
| Katto |
|
| Keittiön kuvaus |
|
| Kylpyhuoneen kuvaus |
|
| WC-tilojen kuvaus |
|
| Saunan kuvaus |
|
| Olohuoneen kuvaus |
|
| Makuuhuoneiden kuvaus |
|
| Säilytystilojen kuvaus ja lisätiedot | Pohjakerroksessa on hyvin varastotiloja, autotalli ja erillinen huone, josta on käynti suoraa ulos alakerran terassille. |
Tontti
| Kiinteistötunnus/laitostunnus | 297-11-34-6-L1 |
|---|---|
| Tontin pinta-ala | 887 m² |
| Tontin omistus | Vuokrattu |
| Tontin Vuokranantaja | Kuopion kaupunki |
| Tontin vuokra | 1 180,40 € |
| Taloyhtiön (Tontin) Vuokrasopimus päättyy | 31.12.2040 |
| Lisätietoja rakennusoikeudesta | Kuopion kaupungilta puh. 017 185111. |
| Lisätietoa kaavoituksesta | Kuopion kaupungilta. |
Palvelut ja liikenneyhteydet
| Palvelut | Keskustan, Linnanpellon ja Saarijärven palvelut. |
|---|---|
| Liikenneyhteydet | Paikallisliikenne. |
| Päiväkoti | Alueen päiväkoti. |
| Koulut | Alueen koulut. |
