Viehättävä omakotitalo Kallaveden läheisyydessä Kellotarhantie 13, Kuopio, Kelloniemi
Aivan Kallaveden rannan tuntumassa, päättyvän tien päässä sijaitsee tämä persoonallinen ja lämminhenkinen koti. Takapihalta pääset suoraan luontoon ulkoilemaan ja uimarannalle sijainti tarjoaa täydellisen yhdistelmän rauhaa ja arjen helppoutta vain lyhyen matkan päässä keskustasta.
Tämä 1980-luvulla rakennettu talo hurmaa omaperäisellä ilmeellään ja toimivalla pohjaratkaisullaan. Kodin sydän on vuonna 2012 remontoitu keittiö, joka on samalla saanut raikkaan, tyylikkään ilmeen. Samassa yhteydessä on uusittu myös pesutilat ja päivitetty kodin pintoja. Käyttövesiputket ja kaukolämmönvaihdin on uusittu myöhemmin, joten tärkeimmät remontit on jo tehty.
Lämmitysmuotona on kaukolämpö, ja lisälämpöä sekä tunnelmaa tuo kaksi takkaa ja ilmalämpöpumppu. Saunassa puolestaan nautitaan aidoista löylyistä puukiukaan lämmössä.
Pihapiiri on suojaisa ja vehreä, tarjoten tilaa oleskeluun, puutarhanhoitoon ja lasten leikkeihin. Autolle on talli, ja lisäksi pihalle mahtuu toinenkin auto.
Kelloniemen alue on tunnettu erinomaisista ulkoilumahdollisuuksistaan läheltä löytyvät rannat, lenkkipolut ja vesistön tarjoamat virkistysmahdollisuudet. Sijainti on rauhallinen mutta keskeinen, ja kulkuyhteydet keskustaan ovat sujuvat.
Tämä koti täytyy ehdottomasti nähdä paikan päällä se tarjoaa lämminhenkistä asumista upeassa ympäristössä, aivan Kallaveden kupeessa.
Tervetuloa tutustumaan tämä koti odottaa uutta perhettä, joka arvostaa persoonallisuutta ja luonnonläheistä sijaintia!
Katja Määttälä, 040 5411 452
katja.maattala@lkvkiinteistoinssi.fi
Lassipekka Parviainen, 044 7008775
lassipekka.parviainen@lkvkiinteistoinssi.fi
Asunnon perustiedot
| Kohdenumero | 20484167 |
|---|---|
| Sijainti |
|
| Tyyppi | Omakotitalo |
| Huoneistoselitelmä | 6h+k+s |
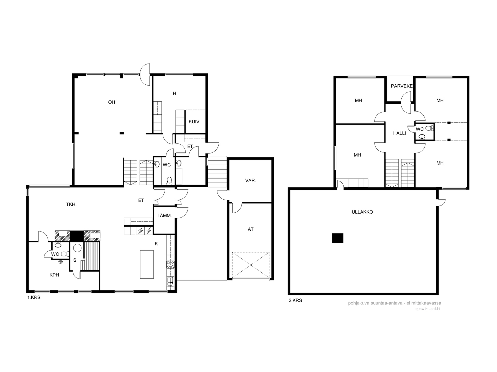
| Asuinpinta-ala m² | 225 m² |
| Yhteensä m² | 225 m² |
| Lisätietoja pinta-alasta | Ks. piirustukset |
| Kerros | 3 |
| Kerroksia | 3 |
| Rakennusvuosi (päättynyt) | 1982 |
| Käyttöönottovuosi | 1982 |
| Vapautuminen | Heti |
Yhteystiedot ja esittelyt
| Yhteystiedot |
|
|---|---|
|
|
|
|
Hinta ja kustannukset
| Velaton hinta | 269 000 € |
|---|---|
| Myyntihinta | 269 000 € |
| Lisätietoja maksuista | Tontin vuokra 386,44 e/v. Kaukolämpöä mennyt n. 28 834 kWh. Taloussähkö 4313,4 kWh/v. Kiinteistövero 575,70 e/v. Valokuitu on, ostaja tekee oman sopimuksen toimittajan kanssa. |
Asunnon lisätiedot
| Sauna |
|
|---|---|
| Tulisija |
|
| Yleiskunto | Hyvä |
| Tehdyt korjaukset | Rakenteet 2012 Keittiö uusittu 2012 Sauna, pesuhuone ja wc-tilat uusittu 2018 Vesikaton puhdistus ja pinnoitus Lämmitysjärjestelmä 2013 Ilmalämpöpumppu asennettu 2022 Kaukolämmönvaihdin uusittu Vesi- ja viemärijärjestelmä 2020 Käyttövesiputket uusittu |
| Lämmitysjärjestelmän kuvaus | Kauko |
Asunnon tilat ja materiaalit
| Asunnon tilat ja materiaalit |
|
|---|---|
| Katto |
|
| Keittiön kuvaus |
|
| Kylpyhuoneen kuvaus |
|
| WC-tilojen kuvaus |
|
| Kodinhoitohuoneen kuvaus |
|
Tontti
| Kiinteistötunnus/laitostunnus | 297-34-140-7-L1 |
|---|---|
| Tontin pinta-ala | 711 m² |
| Tontin omistus | Vuokrattu |
| Tontin Vuokranantaja | Kuopion kaupunki |
| Taloyhtiön (Tontin) Vuokrasopimus päättyy | 30.04.2030 |
| Lisätietoja rakennusoikeudesta | Kuopion kaupungilta 017 182 111. |
| Lisätietoa kaavoituksesta | Kuopion kaupungilta 017 182 111. |
Palvelut ja liikenneyhteydet
| Palvelut | Alueen palvelut. |
|---|---|
| Liikenneyhteydet | Paikallisliikenne. |
| Päiväkoti | Alueen päiväkoti. |
| Koulut | Alueen koulut. |
