VATINIEMENTIE 56, KARTTULA AINUTLAATUINEN RANTAKOHDE KUTTAJÄRVEN RANNALLA.
Tervetuloa tutustumaan tähän persoonalliseen ja korkeatasoiseen hirsirakenteiseen (kelo) omakotitaloon, joka yhdistää luonnonrauhan, tilavuuden ja modernin asumismukavuuden.
Tämä upea kokonaisuus sijaitsee omalla 0,4 hehtaarin aurinkoisella tontilla Kuttajärven rannalla. Karttulan palvelut ovat noin 13 km päässä ja Kuopioon ajat noin 45 minuutissa.
KOTI, JOSSA TILA JA TUNNELMA KOHTAAVAT
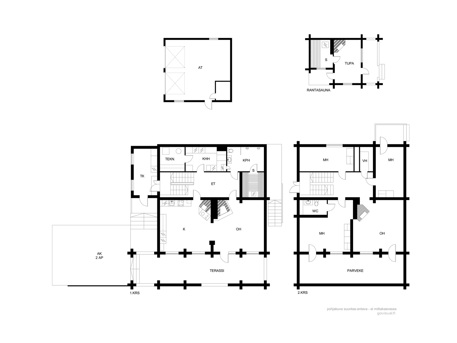
Alun perin 1980-luvulla rakennettu talo on laajasti remontoitu vastaamaan nykypäivän vaatimuksia. Lämmitysmuotona energiatehokas maalämpö. Keittiössä on puuhella ja leivinuuni, olohuoneessa on varaava takka ja yläkerrassa on toinen varaava takka.
Alakerrassa avara keittiö ja olohuone
Sauna-, pesu- ja kodinhoitotilat
Yläkerrassa neljä makuuhuonetta tilaa isommallekin perheelle
Iso parveke yläkerrassa
Tilava terassi/kuisti alakerrassa
OMA RANTAELÄMYS
Rannassa tunnelmallinen 80-luvulla rakennettu rantasauna, terassialueet sekä laituri täydellinen paikka nauttia järvimaisemasta ympäri vuoden.
PIHAPIIRI VIIMEISTELTY JA MONIPUOLINEN
Kahden auton autotalli
Erillinen aittarakennus
Huolitellut ja viimeistellyt piha-alueet
Tämä kohde tarjoaa harvinaisen yhdistelmän laatua, tilaa ja luonnonläheisyyttä.
Tämä on nähtävä paikan päällä, soitathan tai laitat sähköpostia, niin sovitaan katsomisesta.
Katja Määttälä, 040 5411452
katja.maattala@lkvkiinteistoinssi.fi
Lassipekka Parviainen, 044 700 8775
lassipekka.parviainen@lkvkiinteistoinssi.fi
Asunnon perustiedot
| Kohdenumero | 21729859 |
|---|---|
| Sijainti |
|
| Tyyppi | Omakotitalo |
| Huoneistoselitelmä | 5h+k+vh+khh+kph+s, 2 aulaa, 2 wc |
| Asuinpinta-ala m² | 174 m² |
| Yhteensä m² | 222 m² |
| Lisätietoja pinta-alasta | Ks. piirustukset. |
| Kerros | 2 |
| Kerroksia | 2 |
| Rakennusvuosi (päättynyt) | 1981 |
| Käyttöönottovuosi | 1981 |
| Vapautuminen | Sopimuksen mukaan |
Yhteystiedot ja esittelyt
| Yhteystiedot |
|
|---|---|
|
|
|
|
Hinta ja kustannukset
| Velaton hinta | 449 000 € |
|---|---|
| Myyntihinta | 449 000 € |
| Lisätietoja maksuista | Sähköä on mennyt noin 16 000 Kwh/v, sis. kaiken. Vesi-ja jätevesi käytön mukaan. Jätehuolto sekajäte, 160 e/v. Kiinteistövero 600 e/v. Auraus 300 e/v. |
Asunnon lisätiedot
| Sauna |
|
|---|---|
| Tulisija |
|
| Tilojen kuvaus | Tilava eteisaula. Eteisaula on ollut alunperin ulkoterassi ja se on muutettu lämpimäksi tilaksi. |
| Yleiskunto | Hyvä |
| Tehdyt korjaukset | Ks. erillinen lista. |
| Lämmitysjärjestelmä ja sen kunto | Muutos maalämpöön 2014 |
| Lämmitysjärjestelmän kuvaus | Puu, sähkö, maalämpö, ilmalämpöpumppu |
| Muut kaupan kannalta merkittävät tiedot | Upea persoonallinen koti Kuttajärven rannalla. Maalämpö. |
Asunnon tilat ja materiaalit
| Asunnon tilat ja materiaalit |
|
|---|---|
| Katto |
|
| Keittiön kuvaus |
|
| Kylpyhuoneen kuvaus |
|
| WC-tilojen kuvaus |
|
| Saunan kuvaus |
|
| Kodinhoitohuoneen kuvaus |
|
| Olohuoneen kuvaus |
|
| Makuuhuoneiden kuvaus |
|
| Säilytystilojen kuvaus ja lisätiedot | Komerot ja varastot. |
Tontti
| Kiinteistötunnus/laitostunnus | 297-485-7-52 |
|---|---|
| Kortteli/kiinteistön nimi | Suvilahti |
| Tontin pinta-ala | 0,4 ha |
| Tontin omistus | Oma |
| Lisätietoja rakennusoikeudesta | Kuopion kaupungilta. |
| Lisätietoa kaavoituksesta | Kuopion kaupungilta. |
Palvelut ja liikenneyhteydet
| Palvelut | Karttulan palvelut noin 10 km. Koulu, ruokakauppa, päiväkoti, terveysasema, kirjasto, apteekki, alko. |
|---|---|
| Liikenneyhteydet | Koulukyyti Suonenjoentien varresta. |
| Päiväkoti | Karttulan päiväkoti. |
| Koulut | Karttulan koulu 1-9 lk. |
