Rönön parhaimmistoa täysin uudistettu paritalokoti upealla järvinäkymällä!
Kuopion arvostetussa Rönössä, vain lyhyen matkan päässä keskustasta, sijaitsee tämä poikkeuksellinen ja täysin uudistettu paritalohuoneisto. Koti yhdistää modernin asumismukavuuden, viimeistellyn designin ja rauhoittavan järvimaiseman tavalla, jota harvoin on tarjolla.
Tässä kodissa on toteutettu mittava ja laadukas kokonaisuudistus, jossa yksityiskohdat on suunniteltu tarkoin ja kokonaisuus viimeistelty tinkimättömällä otteella. Lämmitysjärjestelmä on uusittu, ikkunapintoja on suurennettu tuomaan tiloihin runsaasti luonnonvaloa sekä korostamaan maisemaa, ja kaikki kalusteet sekä kosteat tilat on uusittu. Alakerran oleskelutilan tyylikäs takka luo lämpöä ja tunnelmaa vuoden ympäri.
Heti sisään astuttaessa katse kiinnittyy kodin vaikuttavimpaan elementtiin upeaan järvinäkymään, joka avautuu suurista ikkunoista ja tuo luonnon osaksi arkea jokaisena vuodenpäivänä.
Myös ulkotilat on toteutettu laadukkaasti ja harkiten. Tilava terassi kesäkeittiöineen kutsuu nauttimaan kesäpäivistä, ja rantaan rakennettu suuri laituri mahdollistaa järvielämästä nauttimisen parhaimmillaan. Yläkerrassa on lisäksi iso parveke.
Autolle on oma tallipaikka ja toiselle autolle erillinen autopaikka. Sähköauton latausmahdollisuus on luonnollisesti huomioitu.
Lounaaseen (etelä/länsi) avautuva tontti, upea järvimaisema, viimeistelty remontti ja Rönön haluttu sijainti muodostavat kokonaisuuden, joita Kuopion asuntomarkkinoilla tulee harvoin vastaan.
Tervetuloa ihastumaan!
Katja Määttälä, 040 5411 452
katja.maattala@lkvkiinteistoinssi.fi
Asunnon perustiedot
| Kohdenumero | 21872242 |
|---|---|
| Sijainti |
|
| Tyyppi | Paritalo |
| Hallintamuoto | Asunto-osakeyhtiö |
| Omistusmuoto | Oma |
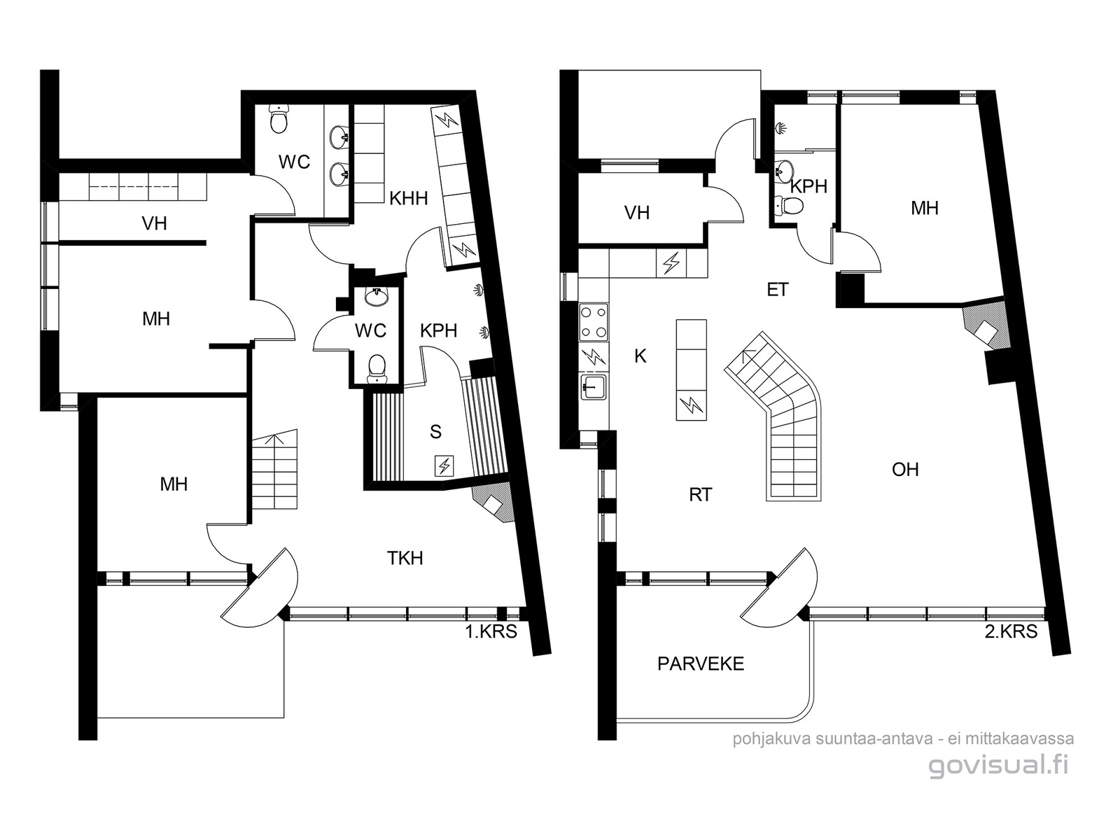
| Huoneistoselitelmä | 5h+k+s |
| Asuinpinta-ala m² | 150.5 m² |
| Yhteensä m² | 150.5 m² |
| Pinta-alan peruste | Yhtiöjärjestyksen mukainen |
| Kerros | 2 |
| Kerroksia | 2 |
| Rakennusvuosi (päättynyt) | 1994 |
| Käyttöönottovuosi | 1994 |
| Vapautuminen | Sopimuksen mukaan, 4 kk kaupasta. |
Yhteystiedot ja esittelyt
| Yhteystiedot |
|
|---|---|
|
|
|
|
Hinta ja kustannukset
| Velaton hinta | 889 000 € |
|---|---|
| Myyntihinta | 889 000 € |
| Yhtiövastike | 225,75 € |
| Hoitovastike | 225,75 € |
| Vesimaksu |
|
| Lisätietoja maksuista | Kylmävesi käytön mukaan. Sähköä on mennyt noin 12500 kWh/v, sis. kahden auton latauksen. |
Asunnon lisätiedot
| Sauna |
|
|---|---|
| Tulisija |
|
| Tilojen kuvaus | Alakerrassa on oleskelutila, jossa on Linnatuli varaava takka. Vieressä on Tulikiven carrara marmoritaso. |
| Parveke | Asunnossa on parveke |
| Parvekkeen kuvaus |
|
| Asuntoon kuuluu |
|
| Yleiskunto | Hyvä |
| Tehdyt korjaukset | Koko huoneisto on remontoitu, lämmitysjärjestelmä on muutettu. Ikkunat on vaihdettu ja suurennettu. Ulko-ovet on uusittu. |
| Lämmitysjärjestelmän kuvaus | Ilmavesilämpöpumppu, muu |
| Muut kaupan kannalta merkittävät tiedot | Aivan ainutlaatuinen kohde. |
Asunnon tilat ja materiaalit
| Asunnon tilat ja materiaalit |
|
|---|---|
| Katto |
|
| Keittiön kuvaus |
|
| Kylpyhuoneen kuvaus |
|
| WC-tilojen kuvaus |
|
| Saunan kuvaus |
|
| Kodinhoitohuoneen kuvaus |
|
| Olohuoneen kuvaus |
|
| Makuuhuoneiden kuvaus |
|
| Säilytystilojen kuvaus ja lisätiedot | Kylmä varastotila. Pyörävarasto. |
Taloyhtiö
| Taloyhtiön nimi | Asunto Oy Kuopion Rönönsäde |
|---|---|
| Autotallipaikkoja | 4 |
| (Taloyhtiön) Rakennukseen tehdyt korjaukset ja remontit | Kattopintojen ja pihavalojen uusiminen 2018. Jätevesipumppaamon uusiminen 2019. Sähköautojen latauspisteet 2022. Puuosien ulkomaalaus. Asfaltoinnin korjaus ja laajennus 2024. |
| Tontin pinta-ala | 2730 m² |
| Tontin omistus | Oma |
Palvelut ja liikenneyhteydet
| Palvelut | Alueen palvelut. |
|---|---|
| Päiväkoti | Alueen päiväkoti. |
| Koulut | Alueen koulut. Snellmanin päiväkoti. |
