Kodikas Koti hyvällä sijainnilla Leväsellä.
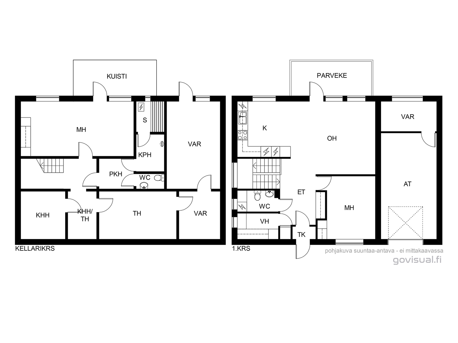
Nätillä piha-alueella varustetussa talossa on kivasti tilaa. Yläkerrasta löytyy olohuone, keittiö, makuuhuone, WC sekä vaatehuone. Olohuoneesta on käynti lasitetulle parvekkeelle- Alakerrassa on todella iso makuuhuone, työ-/makuuhuone, kodinhoitohuone, WC, kylpyhuone, sauna sekä kaksi tilaa jotka soveltuvat hyvin harrastustoimintaan tai varastoiksi.
Autolle löytyy talon yhteydestä sähköovellinen autotalli.
Vapautuu sopimuksen mukaan.
Lisätiedot ja esittelyt:
Lassipekka Parviainen 044 700 8775
lassipekka.parviainen@lkvkiinteistoinssi.fi
Katja Määttälä 040 541 1452
katja.maattala@lkvkiinteistoinssi.fi
Asunnon perustiedot
| Kohdenumero | 20108454 |
|---|---|
| Sijainti |
|
| Tyyppi | Omakotitalo |
| Huoneistoselitelmä | 4h+työhuone+k+s+autotalli |
| Asuinpinta-ala m² | 110 m² |
| Yhteensä m² | 155 m² |
| Kerros | 1 |
| Kerroksia | 2 |
| Rakennusvuosi (päättynyt) | 1978 |
| Käyttöönottovuosi | 1978 |
| Vapautuminen | Sopimuksen mukaan |
Yhteystiedot ja esittelyt
| Yhteystiedot |
|
|---|---|
|
|
|
|
Hinta ja kustannukset
| Velaton hinta | 198 000 € |
|---|---|
| Myyntihinta | 198 000 € |
| Lisätietoja maksuista | Kaukolämmön kulutu vuonna 2025 11 492 kWh. Kiinteistövero vuonna 2025 197,88 euroa. |
Asunnon lisätiedot
| Sauna |
|
|---|---|
| Tilojen kuvaus | Alakerrassa on kaksi varasto-/harrastehuonetta ja autotallin yhteydessä varasto. |
| Asuntoon kuuluu |
|
| Yleiskunto | Tyydyttävä |
| Tehdyt korjaukset | - Käyttövesiputket uusittu 2018 - Autotallin ovi uusittu sähköoveksi 2013 - Katon pinnoite uusittu 2004 - Lämmönvaihdin uusittu 2001, - Kadunpuolen salaojat ja osa etelläpään salaojista 1999 |
| Energialuokka | D2013 |
| Lämmitysjärjestelmän kuvaus | Kauko |
Asunnon tilat ja materiaalit
| Asunnon tilat ja materiaalit |
|
|---|---|
| Katto |
|
| Keittiön kuvaus |
|
| Kylpyhuoneen kuvaus |
|
| WC-tilojen kuvaus |
|
| Saunan kuvaus |
|
| Kodinhoitohuoneen kuvaus |
|
| Olohuoneen kuvaus |
|
| Makuuhuoneiden kuvaus |
|
Tontti
| Kiinteistötunnus/laitostunnus | 297-24-33-2-L1 |
|---|---|
| Energialuokka | D2013 |
| Tontin pinta-ala | 456 m² |
| Tontin omistus | Vuokrattu |
| Tontin Vuokranantaja | Kuopion kaupunki |
| Tontin vuokra | 607,00 € |
| Taloyhtiön (Tontin) Vuokrasopimus päättyy | 31.05.2028 |
| Lisätietoa kaavoituksesta | Kuopion kaupunki |
