Kauniilla paikalla Poikkilammen rantamaisemissa Rytkyllä Karttulantien kupeessa 80-luvun omakotitalo.
Omalla 3 409 neliön tontilla sijaitseva talo, josta saa päivittämällä kivan kodin itselle ja perheelle.
Vapautuu sopimuksen mukaan.
Asuntokaupan kuntotarkastus 09/2025.
Lisätiedot ja esittelyt:
Lassipekka Parviainen 044 700 8775
lassipekka.parviainen@lkvkiinteistoinssi.fi
Katja Määttälä 040 541 1452
katja.maattala@lkvkiinteistoinssi.fi
Asunnon perustiedot
| Kohdenumero | 21529650 |
|---|---|
| Sijainti |
|
| Tyyppi | Omakotitalo |
| Huoneistoselitelmä | 4h+k+s |
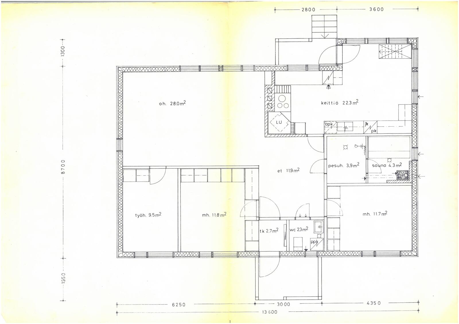
| Asuinpinta-ala m² | 108.4 m² |
| Yhteensä m² | 108.4 m² |
| Lisätietoja pinta-alasta | Rakennusala 129 m². |
| Kerros | 1 |
| Kerroksia | 1 |
| Rakennusvuosi (päättynyt) | 1986 |
| Käyttöönottovuosi | 1986 |
| Vapautuminen | Sopimuksen mukaan |
Yhteystiedot ja esittelyt
| Yhteystiedot |
|
|---|---|
|
|
|
|
Hinta ja kustannukset
| Velaton hinta | 54 000 € |
|---|---|
| Myyntihinta | 54 000 € |
| Lisätietoja maksuista | Sähkönkulutus vuonna 2024 14 517 kWh. Kiinteistövero vuonna 2025 415,80 euroa. |
Asunnon lisätiedot
| Sauna |
|
|---|---|
| Tulisija |
|
| Yleiskunto | Välttävä |
| Tehdyt korjaukset | - 2017 vesikatto uusittu |
| Energialuokka | D2018 |
| Lämmitysjärjestelmän kuvaus | Sähkö |
Asunnon tilat ja materiaalit
| Asunnon tilat ja materiaalit |
|
|---|---|
| Katto |
|
| Keittiön kuvaus |
|
| Kylpyhuoneen kuvaus |
|
| WC-tilojen kuvaus |
|
| Olohuoneen kuvaus |
|
| Makuuhuoneiden kuvaus |
|
| Säilytystilojen kuvaus ja lisätiedot | Kaksi varastorakennusta |
Tontti
| Kiinteistötunnus/laitostunnus | 297-417-2-82 |
|---|---|
| Energialuokka | D2018 |
| Tontin pinta-ala | 3409 m² |
| Tontin omistus | Oma |
| Lisätietoa kaavoituksesta | M-2 Länsirannan yleiskaava |
