Etsitkö kodikasta, avaraa ja valoisaa päätyasuntoa hyvällä sijainnilla?
Tarjolla hyväkuntoinen Koti lähellä kouluja ja päiväkoteja. Kodin kylpyhuone ja sauna on uusittu 2021 sekä keittiö 2016. Mukavuutta lisäämään asennettu ilmalämpöpumppu kahdella sisäyksiköllä 2022.
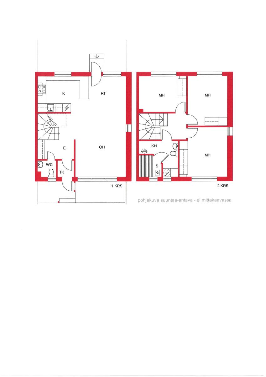
Alakerrassa on valoisa keittiö-olohuone yhdistelmä sekä erillinen WC. Yläkerrasta löytyy kolme makuuhuonetta, kylpyhuone ja sauna. Autolle löytyy taloyhtiön pihasta sähköpistokepaikka.
Taloyhtiö on valmistunut 1991 ja yhtiössä on 15 asuntoa.
Tervetuloa tutustumaan!
Lisätiedot ja esittelyt:
Lassipekka Parviainen 044 700 8775
lassipekka.parviainen@lkvkiinteistoinssi.fi
Katja Määttälä 040 541 1452
katja.maattala@lkvkiinteistoinssi.fi
Asunnon perustiedot
| Kohdenumero | 21970281 |
|---|---|
| Sijainti |
|
| Tyyppi | Rivitalo |
| Hallintamuoto | Asunto-osakeyhtiö |
| Omistusmuoto | Oma |
| Huoneistoselitelmä | 4h+k+s |
| Asuinpinta-ala m² | 88 m² |
| Yhteensä m² | 88 m² |
| Pinta-alan peruste | Yhtiöjärjestyksen mukainen, isännöitsijäntodistuksen mukainen |
| Kerros | 1 |
| Kerroksia | 2 |
| Rakennusvuosi (päättynyt) | 1991 |
| Käyttöönottovuosi | 1991 |
| Vapautuu | 30.06.2026 |
Yhteystiedot ja esittelyt
| Yhteystiedot |
|
|---|---|
|
|
|
|
Hinta ja kustannukset
| Velaton hinta | 178 000 € |
|---|---|
| Myyntihinta | 178 000 € |
| Yhtiövastike | 402,27 € |
| Hoitovastike | 402,27 € |
| Vesimaksu |
|
| Autopaikkamaksu | 14 € / kk |
| Lisätietoja maksuista | Kylmävesimaksu 5,60 €/m3 ja lämminvesimaksu 10,60 €/m3. |
Asunnon lisätiedot
| Sauna |
|
|---|---|
| Asuntoon kuuluu |
|
| Yleiskunto | Hyvä |
| Tehdyt korjaukset | - Vuosi 2021 Kylpyhuone ja sauna uusittu kokonaisuudessaan (Vesieristeet, laatat, paneelit ja kalusteet uusittu) Muun huoneiston pintamaalaukset tehty (Osa huoneiston seinistä maalattu/tapetoitu) - Vuosi 2022 Ilmalämpöpumppu asennettu kahdella sisäyksiköllä - Vuosi 2023 Eteinen remontoitu (Rimakatto ja rimaseinä asennettu ja Lattia laatoitettu) - 2016 keittiö remontoitu sekä keittiön ja olohuoneen välinen väliseinä purettu. |
| Energialuokka | C2013 |
| Lämmitysjärjestelmän kuvaus | Kauko |
Asunnon tilat ja materiaalit
| Asunnon tilat ja materiaalit |
|
|---|---|
| Katto |
|
| Keittiön kuvaus |
|
| Kylpyhuoneen kuvaus |
|
| WC-tilojen kuvaus |
|
| Saunan kuvaus |
|
| Olohuoneen kuvaus |
|
| Makuuhuoneiden kuvaus |
|
Taloyhtiö
| Taloyhtiön nimi | Asunto Oy Kuopion Kruunupää |
|---|---|
| Isännöitsijän yhteystiedot | Oiva Isännöinti Kuopio Oy Kari Kröger Maaherrankatu 21 A, 3.krs 70100 Kuopio |
| Energialuokka | C2013 |
| (Taloyhtiön) Rakennukseen tehdyt korjaukset ja remontit | - Patteriveroston säätö 2025, - Palovaroittimet 2024, - Kattohuolto, IV-huolto- ja säätö 2021, - Piha-alueen kulkuväylien pintakerrosten parantaminen 2017, - Llämpökeskuksen modernisointi ja lämpöverkon tarvittavat korjaukset 2015, - Leikkialueen laitteiden uusiminen tarvittavilta osin 2013, - Pihakäytävien- ja autopaikka-alueen kunnostus 2011, - Ilmanvaihtokanavien puhdistus, mittaus ja säätö 2010, - Jätekatoksen rakentaminen 2000 |
| Tiedossa olevat tulevat korjaukset/remontit | Asunto-osakeyhtiön hallituksen kunnossapitotarveselvitys 2026-2023: - 2027-28 Huoneistojen ovien ja lukituksen uusiminen |
| Tontin pinta-ala | 4949 m² |
| Tontin omistus | Vuokrattu |
| Tontin Vuokranantaja | Kuopion kaupunki |
| Taloyhtiön (Tontin) Vuokrasopimus päättyy | 01.01.2040 |
