Laadukas ja persoonallinen omakotitalo loistosijainnilla Pirtissä.
Tervetuloa tutustumaan tähän mielenkiintoisen arkkitehtuurin omaavaan, porrastettuun yksitasoiseen omakotitaloon. Koti sijaitsee rauhallisella ja arvostetulla Pirtin alueella, lähellä palveluita ja Kallaveden rantoja.
Kodissa on tehty mittavia päivityksiä ja pintojen uusimisia vuosien varrella, ja viimeisimpänä salaojat on uusittu syksyllä 2025, mikä tuo huolettomuutta pitkälle tulevaisuuteen.
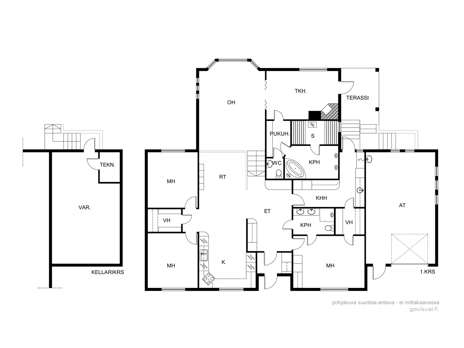
Tilava ja valoisa pohjaratkaisu koostuu kolmesta makuuhuoneesta, avarasta olohuoneesta, erillisestä ruokailutilasta sekä tunnelmallisesta takkahuoneesta. Korkea huonetila tuo kotiin ilmavuutta ja persoonallista ilmettä. Säilytystilaa on runsaasti, sillä käytössä on kaksi vaatehuonetta sekä erillinen varasto/harrastetila.
Arjen sujuvuutta lisää erinomainen kodinhoitohuone, josta on käynti suoraan ulos. Kylpyhuone- ja saunatilat sekä kaksi wc:tä palvelevat hyvin isommankin perheen tarpeita.
Lisäarvoa tuo omalla sisäänkäynnillä varustettu harraste-/varastotila, jossa sijaitsee myös tekninen tila erinomainen ratkaisu esimerkiksi harrastuksiin, työtilaksi tai säilytystarpeeseen. Talon päädyssä on lisäksi hyvänkokoinen autotalli.
Pirtti on tunnettu viihtyisyydestään ja loistavista ulkoilumahdollisuuksistaan. Palvelut, koulut ja päiväkodit ovat lähellä, samoin Kallaveden ranta ja ulkoilureitit. Hyvät julkiset liikenneyhteydet takaavat sujuvan arjen.
Tämä koti on kokonaisuus, jossa laatu, toimivuus ja sijainti kohtaavat.
Soitathan meille tai laitat sähköpostia, niin sovitaan katsomisesta:
Katja Määttälä, 040 5411 452
katja.maattala@lkvkiinteistoinssi.fi
Lassipekka Parviainen, 044 700 8775
lassipekka.parviainen@lkvkiinteitoinssi.fi
Asunnon perustiedot
| Kohdenumero | 21323456 |
|---|---|
| Sijainti |
|
| Tyyppi | Omakotitalo |
| Huoneistoselitelmä | 4h+k+ruokailutila+takkah+khh+s+kph+2 wc+2wh. |
| Asuinpinta-ala m² | 156 m² |
| Yhteensä m² | 245 m² |
| Lisätietoja pinta-alasta | Huoneistoala 156 m². Kerrosala 245 m². |
| Kerros | 1 |
| Kerroksia | 1 |
| Rakennusvuosi (päättynyt) | 1990 |
| Käyttöönottovuosi | 1990 |
| Vapautuminen | Sopimuksen mukaan |
Yhteystiedot ja esittelyt
| Yhteystiedot |
|
|---|---|
|
|
|
|
Hinta ja kustannukset
| Velaton hinta | 289 000 € |
|---|---|
| Myyntihinta | 289 000 € |
| Lisätietoja maksuista | Taloussähköä on mennyt 5694 Kwh/v. Tontin vuokra 565,37 e/v. Kiinteistövero 589,80 e/v. Jätehuolto n. 150 e/v. Talvikunnossapito 46,68 e/v Hulevesi 40 e/v. Vesi-ja jätevesi käytön mukaan. Kaapeli-tv DNA:n taksan mukaan. |
Asunnon lisätiedot
| Sauna |
|
|---|---|
| Tulisija |
|
| Tilojen kuvaus | Kaksi vaatehuonetta. Toisen vaatehuoneen kalusteet ei sisälly kauppaan. Alakerrassa on omalla sisäänkäynnillä oleva harrastetila/varasto, jossa on myös tekninen tila. Talon päädyssä on lämmin autotalli, jossa on vesipiste, kaivo. Autotallin lukko ei toimi. |
| Asuntoon kuuluu |
|
| Yleiskunto | Hyvä |
| Tehdyt korjaukset | Ks. erillinen listaus. |
| Energialuokka | C2018 |
| Lämmitysjärjestelmä ja sen kunto | Kaukolämmönvaihdin on uusittu 2024. Ilmalämpöpumppu 2022. |
| Lämmitysjärjestelmän kuvaus | Kauko, ilmalämpöpumppu |
Asunnon tilat ja materiaalit
| Asunnon tilat ja materiaalit |
|
|---|---|
| Katto |
|
| Keittiön kuvaus |
|
| Kylpyhuoneen kuvaus |
|
| WC-tilojen kuvaus |
|
| Saunan kuvaus |
|
| Kodinhoitohuoneen kuvaus |
|
| Olohuoneen kuvaus |
|
| Makuuhuoneiden kuvaus |
|
| Säilytystilojen kuvaus ja lisätiedot | Kaapistot ja varastotilat. |
Tontti
| Kiinteistötunnus/laitostunnus | 29-34-14-4-L1 |
|---|---|
| Energialuokka | C2018 |
| Tontin pinta-ala | 1030 m² |
| Tontin omistus | Vuokrattu |
| Tontin Vuokranantaja | Kuopion kaupunki |
| Tontin vuokra | 565,37 € |
| Taloyhtiön (Tontin) Vuokrasopimus päättyy | 31.03.2040 |
| Lisätietoja rakennusoikeudesta | Kuopion kaupungilta 017 182 111. |
| Lisätietoa kaavoituksesta | Asemakaava, AO |
Palvelut ja liikenneyhteydet
| Palvelut | Alueen palvelut. |
|---|---|
| Liikenneyhteydet | Paikallisliikenne |
| Päiväkoti | Alueen päiväkoti. |
| Koulut | Alueen koulut. |
