Tilava täystiilitalo omalla 1,57 ha tontilla maalämpö ja rauhallinen sijainti lähellä palveluja!
Hatunkiventien varrella, luonnonläheisellä paikalla Karttulassa, sijaitsee tämä 80-luvulla rakennettu täystiilitalo, jossa on tilaa ja toimivat ratkaisut koko perheelle.
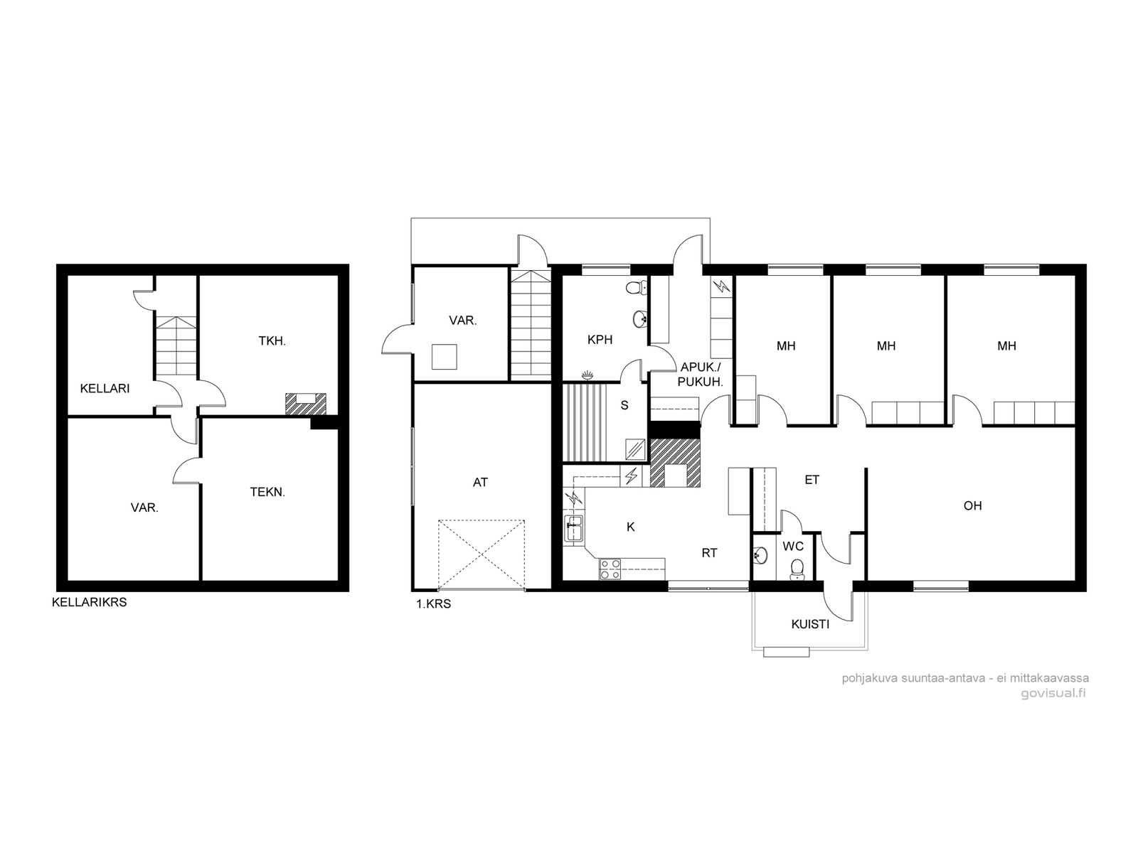
Asuminen on yhdessä tasossa: kolme makuuhuonetta, olohuone, kodikas keittiö, jossa tunnelmaa tuovat leivinuuni ja puuhella. Tilava kodinhoitohuone tarjoaa arjen sujuvuutta ja siitä on käynti suoraan ulos. Saunaosastolla viihtyy perinteisen puukiukaan lämmössä, ja pesuhuone on hyvänkokoinen.
Alakerrasta löytyy runsaasti harrastetilaa, takkahuone, tekninen tila sekä varastotilaa. Talon päädyssä on lisäksi autotalli.
Remontteja ja parannuksia:
– Käyttövesiputket uusittu 2006
– Muutos maalämpöön 2013
– Keittiö ja pintoja uusittu
– Piha-alue on avara ja monipuolinen täällä riittää tilaa pelaamiseen, leikkimiseen ja vaikka oman puutarhan perustamiseen.
Sijainti on rauhallinen, mutta Karttulan palvelut ovat kuitenkin mukavan lähellä. Tämä koti tarjoaa mainion yhdistelmän toimivaa arkea, maalaismaisemaa ja tilavaa asumista.
Tervetuloa tutustumaan!
Katja Määttälä, 040 5411 452
katja.maattala@lkvkiinteistoinssi.fi
Lassipekka Parviainen, 044 700 8775
lassipekka.parviainen@lkvkiinteistoinssi.fi
Asunnon perustiedot
Kohdenumero | 21322638 |
---|---|
Sijainti |
|
Tyyppi | Omakotitalo |
Huoneistoselitelmä | 4h+k+khh+kph+s+wc+alakerta |
Asuinpinta-ala m² | 101.5 m² |
Yhteensä m² | 154 m² |
Kerros | 1 |
Kerroksia | 1 |
Rakennusvuosi (päättynyt) | 1982 |
Käyttöönottovuosi | 1982 |
Vapautuminen | Sopimuksen mukaan |
Yhteystiedot ja esittelyt
Yhteystiedot |
|
---|---|
![]() |
|
|
Hinta ja kustannukset
Velaton hinta | 129 000 € |
---|---|
Myyntihinta | 129 000 € |
Lisätietoja maksuista | Sähköä on mennyt noin 10 -11 000 Kwh/v. Kiinteistövero 450 e/v. Tiemaksu 195 e/v, auraus noin 250 e/v. Jätevesimaksu Karttulan vesiosuuskunnalle. Jätehuolto n. 150 e/v. Nuohous vuosittain. |
Asunnon lisätiedot
Sauna |
|
---|---|
Tulisija |
|
Tilojen kuvaus | Alakerrassa on harraste ja varastotiloja, takkahuone, tekn.tila, puuvarasto. Autotalli/varasto on talon päässä. |
Yleiskunto | Hyvä |
Lisätietoa kunnosta | Kuntotarkastus 2020. |
Tehdyt korjaukset | 2006 Keittiöremontti. Jääkaappi ja pakastin 2020. Astianpesukone 2023. Sähköliesi 2020. Lattiat vinyylikorkki 2017. Käyttövesiputket 2006. Maalämpö 2013. Seiniä maalattu 2017. WC remontoitu 2017. |
Energialuokka | D2013 |
Lämmitysjärjestelmä ja sen kunto | Leivinuuni ja puuhella. |
Lämmitysjärjestelmän kuvaus | Maalämpö |
Muut kaupan kannalta merkittävät tiedot | Iso tontti, 1,57 ha. Maalämpö. Täystiilitalo. Karttulan palvelut ovat lähellä. Oma kaivo. |
Asunnon tilat ja materiaalit
Asunnon tilat ja materiaalit |
|
---|---|
Katto |
|
Keittiön kuvaus |
|
Kylpyhuoneen kuvaus |
|
WC-tilojen kuvaus |
|
Kodinhoitohuoneen kuvaus |
|
Olohuoneen kuvaus |
|
Makuuhuoneiden kuvaus |
|
Säilytystilojen kuvaus ja lisätiedot | Varastot ja autotalli. |
Tontti
Kiinteistötunnus/laitostunnus | 297-474-3-5 |
---|---|
Energialuokka | D2013 |
Tontin pinta-ala | 1,57 ha |
Tontin omistus | Oma |
Lisätietoja rakennusoikeudesta | Kuopion kaupungilta 017 182 111. |
Lisätietoa kaavoituksesta | Kuopion kaupungilta 017 182 111 |
Palvelut ja liikenneyhteydet
Palvelut | Karttulan palvelut. |
---|---|
Päiväkoti | Päiväkoti. |
Koulut | Koulu 1-9 lk. |























