Mahtavilla näköaloilla varustettu 4.kerroksen kolmio 2008 omalle tontille Kallaveden rantamaisemiin valmistuneesta taloyhtiöstä.
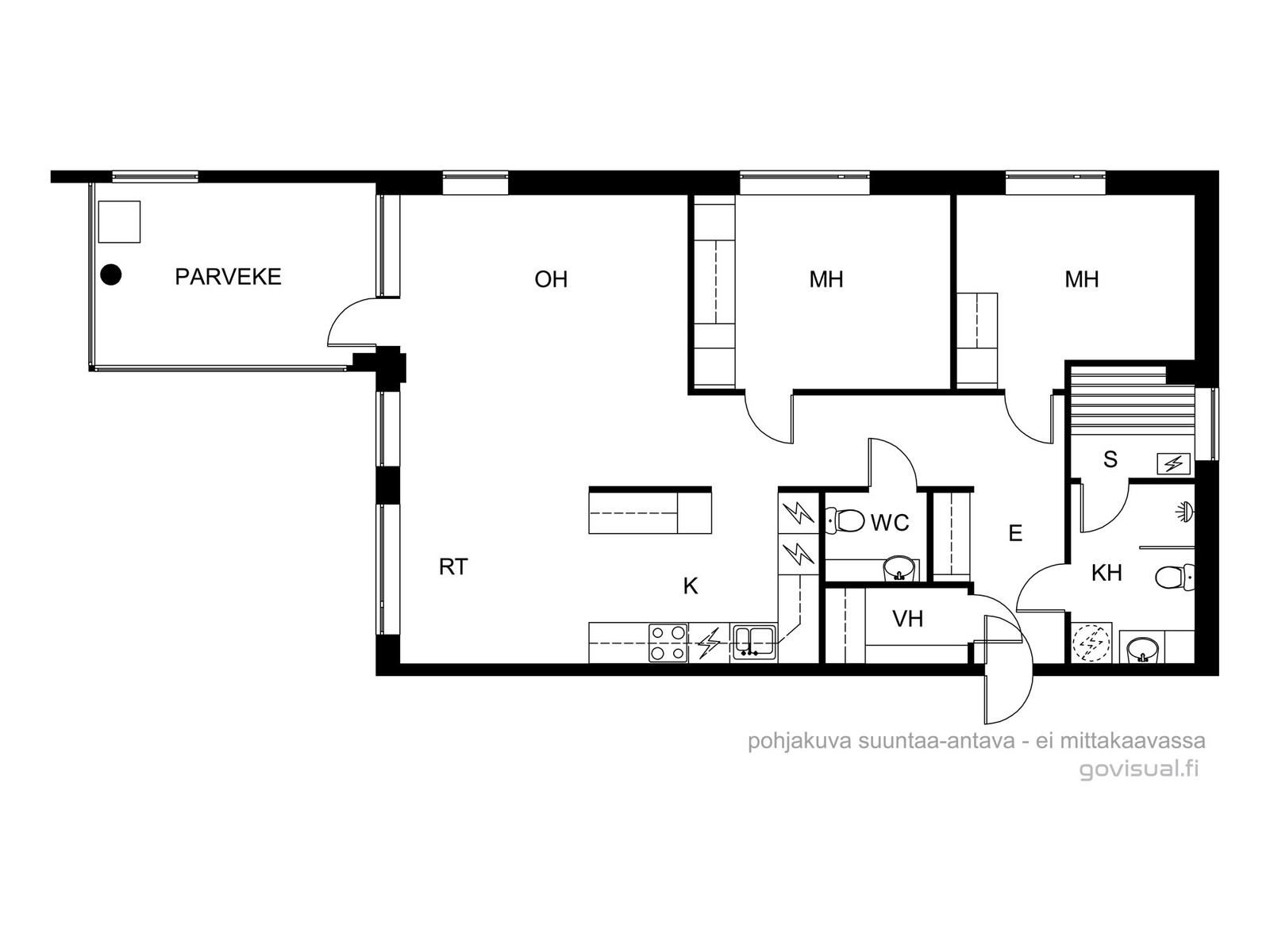
79 neliöisessä saunallisessa kodissa on kaksi makuuhuonetta, kaksi WC:tä (toinen kylpyhuoneen yhteydessä), kylpyhuone, sauna, keittiö ja olohuone sekä kaiken kruununa iso lasitettu parveke, josta on hienot näköalat. Lisäksi hyvän kokoinen vaatehuone ja reilusti kaappitilaa.
Asunto Oy Siilinjärven Kotiranta on velaton taloyhtiö, jonka erikoisuutena taloyhtiön jäähdytysjärjestelmä. Mainio sijainti hyvien kulkuyhteyksien äärellä lähellä lentokenttää ja Kunnonpaikan palveluita.
Samassa yhteydessä autolle myydään autokatospaikka, hintapyyntö 7 000 euroa sekä veneelle laituripaikka, hintapyyntö 4 000 euroa.
Vapautuu tarvittaessa nopeasti.

Loistavalla sijainnilla olevaan Kotiin kannattaa tutustua paikanpäällä eli ota rohkeasti yhteyttä.

Lisätiedot ja esittelyt:

Lassipekka Parviainen 044 700 8775
lassipekka.parviainen@lkvkiinteistoinssi.fi

Katja Määttälä 040 541 1452
katja.maattala@lkvkiinteistoinssi.fi

Asunnon perustiedot

Kohdenumero20636173
Sijainti
  • Vuorela
  • Virtasalmentie 7
  • 70910
  • Siilinjärvi
TyyppiKerrostalo
HallintamuotoAsunto-osakeyhtiö
OmistusmuotoOma
Huoneistoselitelmä3h+k+s
Asuinpinta-ala m²79 m²
Yhteensä m²79 m²
Pinta-alan perusteYhtiöjärjestyksen mukainen, isännöitsijäntodistuksen mukainen
Kerros4
Kerroksia5
Rakennusvuosi (päättynyt)2008
Käyttöönottovuosi2008
VapautuminenSopimuksen mukaan

Yhteystiedot ja esittelyt

Yhteystiedot
  • Lassipekka Parviainen
  • LKV Kiinteistöinssi Oy
  • lassipekka.parviainen@lkvkiinteistoinssi.fi
  • +358447008775
Lassipekka Parviainen