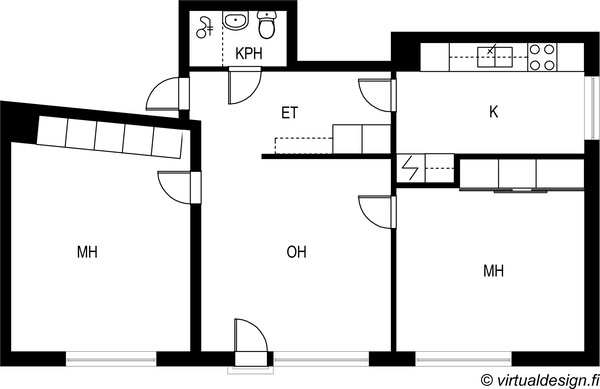
Keskustassa, Raviradantiellä 2.kerroksen valoisa kolmio. Jämäkkä kivitalo. Tehokkaat neliöt. Huoneistossa on hyvin säilytystilaa. Olohuoneessa on ranskalainen parveke. Yhtiössä on tehty 2014 mittava LVIS-remontti, jolloin myös koko huoneisto on remontoitu.
Autolle on pistokepaikka taloyhtiön pihassa 15 e/kk.
Vapautuu 1.12.2025 alkaen.
Huoneisto soveltuu hyvin myös kahdelle opiskelijalle, kun molempiin huoneisiin on käynti olohuoneesta ja niissä on ovet.
Vuokra 800 e/kk.
Vakuus 1 kk.
Vesiennakko 22 e/hlö/kk + mittaritasaus.
Ei luottohäiriöitä, ei tupakointia, ei lemmikkejä.
Vuokralainen ottaa vastuuosan sisältävän kotivakuutuksen.
Lisätiedot:
Katja Määttälä, 040 5411 452
katja.maattala@lkvkiinteistoinssi.fi
Asunnon perustiedot
| Kohdenumero | 20741788 |
|---|---|
| Sijainti |
|
| Tyyppi | Kerrostalo |
| Huoneistoselitelmä | 3h+k |
| Asuinpinta-ala m² | 61 m² |
| Yhteensä m² | 61 m² |
| Kerros | 3 |
| Kerroksia | 3 |
| Rakennusvuosi (päättynyt) | 1959 |
| Käyttöönottovuosi | 1959 |
| Vapautuu | 01.12.2025 |
Yhteystiedot ja esittelyt
| Yhteystiedot |
|
|---|---|
|
|
|
|
Hinta ja kustannukset
| Kuukausivuokra | 800,00 € |
|---|---|
| Vesimaksu |
|
| Lisätietoja maksuista | Vesiennakko 22 e/hlö/kk + mittaritasaus. Autopaikka 15 e/kk. |
Asunnon lisätiedot
| Parveke | Asunnossa on parveke |
|---|---|
| Parvekkeen kuvaus |
|
| Asuntoon kuuluu |
|
| Yleiskunto | Hyvä |
| Energialuokka | D2007 |
| Lämmitysjärjestelmän kuvaus | Kauko |
Asunnon tilat ja materiaalit
| Asunnon tilat ja materiaalit |
|
|---|---|
| Katto |
|
| Kylpyhuoneen kuvaus |
|
| Säilytystilojen kuvaus ja lisätiedot | Yhtiön säilytystilat. |
Taloyhtiö
| Taloyhtiön nimi | Asunto Oy Kuopion Raviradantie 2 |
|---|---|
| Isännöitsijän yhteystiedot | Jarkko Malinen, 0443558626 jarkko.malinen@oi.fi Maaherrankatu 21 A, 3.krs, 70100 Kuopio |
| Taloyhtiössä muuta | Sauna, pesutupa, varastokomero. |
| Energialuokka | D2007 |
| (Taloyhtiön) Rakennukseen tehdyt korjaukset ja remontit | 1991 WC-laitteiden uusiminen. 1992 Parvekeovien uusiminen. 1992 Tonttijohdon ja viemärin (ulkopuoli) uusiminen. 1993 Jätekatos. 1994 Anternnirasiat ja linjasäätöventtiilit. 1996 Termostaattiventtiilit. 1997 Pesukone Miele. 1999 Katon maalaus. 2001 Porraskäytävien lattiat. 2005 Lämmönvaihdin. 2006 Saunaremontti ja päädyn sisäänkäynnin pohjaus. 2007 Asbestikartoitus ja päädyn asfaltointi. 2009 Putkiston kuntotutkimus. 2011 Ikkuna-ja julkisivuremontti. 2014 LVIS-peruskorjaus, tehty uusivalla korjaustavalla. |
| Tiedossa olevat tulevat korjaukset/remontit | Lukituksen uusiminen. |
| Tontin pinta-ala | 2863 m² |
| Tontin omistus | Vuokrattu |
| Tontin Vuokranantaja | Kuopion kaupunki |
Palvelut ja liikenneyhteydet
| Palvelut | Alueen palvelut. |
|---|---|
| Liikenneyhteydet | Paikallisliikenne. |
| Päiväkoti | Alueen päiväkoti. |
| Koulut | Alueen koulut. |
