Valoisa ja heti vapaa kaksio Kuopion keskustassa Kauppakatu 65
Osoite: Kauppakatu 65, 70100 Kuopio
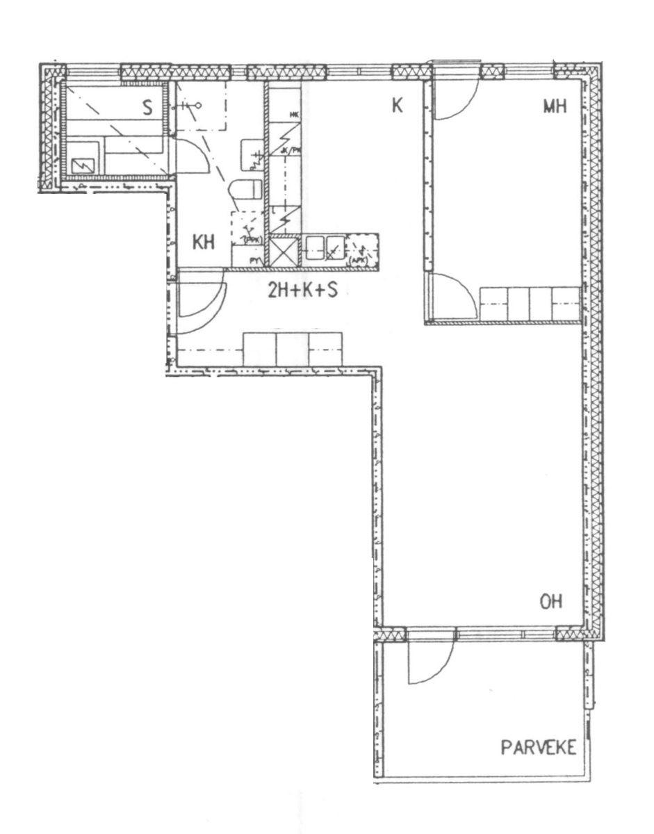
Huoneisto: 2h + k + s, 4. kerros, läpitalon huoneisto
Lasitettu parveke ja ranskalainen parveke
Pinta-ala: 56,5 m2
Rakennusvuosi: 1993
Vapautuminen: Heti
Tervetuloa tutustumaan tähän valoisaan ja toimivapohjaiseen kaksioon aivan Kuopion keskustan ytimessä! Huoneisto sijaitsee hyvin hoidetussa vuonna 1993 valmistuneessa talossa, johon on esteetön sisääntulo, hissi ja summeri.
Olohuoneesta on käynti suurelle lasitetulle parvekkeelle, joka tuo asumiseen lisätilaa aikaisesta keväästä pitkälle syksyyn. Keittiö ja makuuhuone sijoittuvat talon rauhallisen sisäpihan puolelle, mikä takaa viihtyisän arjen keskustan palvelujen äärellä.
Asunnon sauna ja pesuhuone on remontoitu tyylikkäästi vuonna 2020. Yhtiö sijaitsee omalla tontilla, mikä tekee asumisesta vakaata myös pitkällä tähtäimellä.
Loistava sijainti keskellä Kuopiota kaikki palvelut, torialue, ravintolat ja liikenneyhteydet kävelyetäisyydellä.
Soitathan meille tai laitat sähköpostia, niin sovitaan katsomisesta:
Katja Määttälä, 040 5411 452
katja.maattala@lkvkiinteistoinssi.fi
Lassipekka Parviainen, 044 700 8775
lassipekka.parviainen@lkvkiinteistoinssi.fi
Asunnon perustiedot
| Kohdenumero | 20958955 |
|---|---|
| Sijainti |
|
| Tyyppi | Kerrostalo |
| Hallintamuoto | Asunto-osakeyhtiö |
| Omistusmuoto | Oma |
| Huoneistoselitelmä | 2h+k+s |
| Asuinpinta-ala m² | 56.5 m² |
| Yhteensä m² | 56.5 m² |
| Pinta-alan peruste | Yhtiöjärjestyksen mukainen |
| Kerros | 4 |
| Kerroksia | 5 |
| Rakennusvuosi (päättynyt) | 1993 |
| Käyttöönottovuosi | 1993 |
| Vapautuminen | Heti |
Yhteystiedot ja esittelyt
| Yhteystiedot |
|
|---|---|
|
|
|
|
Hinta ja kustannukset
| Velaton hinta | 137 000 € |
|---|---|
| Myyntihinta | 137 000 € |
| Yhtiövastike | 327,70 € |
| Hoitovastike | 327,70 € |
| Vesimaksu |
|
| Lisätietoja maksuista | Lämminvesimaksu 14 e/m3, vesiennakko 9,00 e/hlö/kk. |
Asunnon lisätiedot
| Sauna |
|
|---|---|
| Tilojen kuvaus | Eteinen |
| Parveke | Asunnossa on parveke |
| Parvekkeen kuvaus |
|
| Hissi | Taloyhtiössä on hissi |
| Asuntoon kuuluu |
|
| Yleiskunto | Hyvä |
| Lisätietoa kunnosta | Uusituilta osin hyvä. |
| Tehdyt korjaukset | Kylpyhuoneremontti 2020. |
| Energialuokka | E2018 |
| Lämmitysjärjestelmän kuvaus | Kauko |
| Muut kaupan kannalta merkittävät tiedot | Hissitalon 4.kerroksen läpitalon huoneisto. Esteetön sisääntulo. Lasitettu parveke. Kylphuone ja sauna on remontoitu 2020. Arvostettu yhtiö Kaikki keskustan palvelut ovat vieressä. |
Asunnon tilat ja materiaalit
| Asunnon tilat ja materiaalit |
|
|---|---|
| Katto |
|
| Keittiön kuvaus |
|
| Kylpyhuoneen kuvaus |
|
| Saunan kuvaus |
|
| Olohuoneen kuvaus |
|
| Makuuhuoneiden kuvaus |
|
| Säilytystilojen kuvaus ja lisätiedot | Yhtiön välittömään hallintaan jäävät kellarikerroksessa olevat: saunaosasto n. 8 m², talouskellari n.10 m², varastokomerotilat n.100 m², talonvarasto n. 3,5 m², pesula(kuivaushuone n. 6m², ulkoiluvälinevarasto n. 17 m² ja tekniset tilat n. 10m². |
Taloyhtiö
| Taloyhtiön nimi | Asunto Oy Kuopion Kauppaneuvos |
|---|---|
| Isännöitsijän yhteystiedot | Otto Mikkonen otto.mikkonen@oi.fi |
| Taloyhtiössä muuta | Yhtiössä on 37 asunto ja 28 autotallia. Yhtiön välittömään hallintaan jäävät yhtiöjärjestyksen mukaan kellarikerroksessa olevat: saunaosasto n. 8 m², talouskellari n.10 m², varastokomerotilat n.100 m², talonvarasto n. 3,5 m², pesula(kuivaushuone n. 6m², ulkoiluvälinevarasto n. 17 m² ja tekniset tilat n. 10m². |
| Energialuokka | E2018 |
| Autotallipaikkoja | 28 |
| (Taloyhtiön) Rakennukseen tehdyt korjaukset ja remontit | 2010 Päädyn ja Kauppakadun puoleisen julkisivun pinnoitus. 2011 Vesikaton korjausremontti. 2012 Ilmanvaihdon huippuimurin moottorin uusinta. 2012 Lämmönvaihtimen paisunta-astian vaihto. 2103 Lämmönjakokeskuksen uusinta. 2015 Lämmönvaihtimen uusinta ja säätö. 2016 Piharemontti. 2017 Ilmastoinnin puhdistus ja säätö. 2017 Pihan autotallin ja raja-aitojen huoltomaalaus. 2019 Autohallin kaasunilmaisimien uusinta. 2020 Salaojien huuhtelu. 2020 Valurautaisen runkoviemärin kuvaus. 2020 Salaojien huuhtelu 2021 Lukituksen uusiminen 2021 Porraskäytävien ulko-ovien uusiminen 2023 Julkisivujen korjaus ja saumojen uusiminen 2023 Parvekekaiteiden huoltomaalaus |
| Tiedossa olevat tulevat korjaukset/remontit | Vesikaton kunnon tarkastus 2025 Kiinteistön kuntoarvio 2026 Betonilattioiden huoltomaalaus 2026 Porrashuoneiden huoltomaalaus 2026 Huoneistojen patteriventtiileiden uusiminen 2026 Pihan asfaltointi 2027 Perusmuurin vedeneristys 2027 Autotallin lattioiden halkeamien injektointi 2028 Autotallien huoltomaalaus 2029 Ilmanvaihtojärjestelmän puhdistus 2029 |
| Tontin pinta-ala | 1503 m² |
| Tontin omistus | Oma |
Palvelut ja liikenneyhteydet
| Palvelut | Keskustan kaikki palvelut ovat vieressä. |
|---|---|
| Liikenneyhteydet | Paikallisliikenne. |
| Päiväkoti | Keskustan päiväkoti. |
| Koulut | Keskustan koulut. |
